"Серебряный"

Данный дизайн-проект разработан для дома в поселке Серебряный. Интерьер выполнен в стиле лофт с яркими акцентами в виде мягкой мебели терракотового оттенка и красного кирпича, придающего интерьеру брутальности. Минимальное использование внутренних стен и перегородок в общем пространстве в сочетании с большими окнами, без использования тюля или штор, рождает обилие воздуха и света – в первую очередь, естественного, что является важным при создании интерьеров в стиле лофт.

Локация:

"Серебряный"

Площадь:

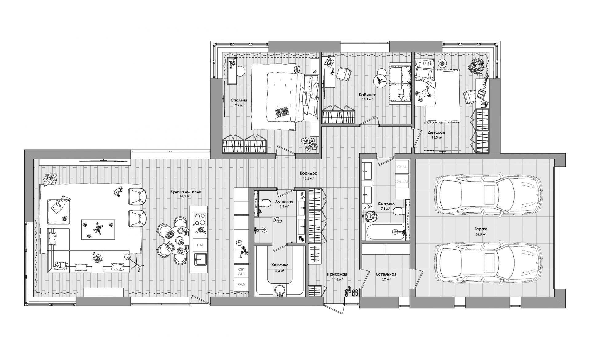
314,3 м2

Назначение:

Дом

Над проектом работали:

Павлова Оксана, Ушакова Варвара, Соколова Анастасия

Локация: "Серебряный"

Площадь: 314,3 м2

Назначение: Дом

Над проектом работали: Павлова Оксана, Ушакова Варвара, Соколова Анастасия

План

Визуализация

Оставьте свои контактные данные

Мы свяжемся с вами в течение дня

Мы используем файлы cookie, чтобы улучшить работу сайта. Пользуясь сайтом, вы соглашаетесь с использованием файлов cookie.